ООО "РиелтКафе" Агентство недвижимости УНП: 193208343 Лицензия: 02240/375, выдана Министерством юстиции РБ 28.06.2019г., договор оказания риэлтерских услуг продавцу объекта недвижимости 116/2 от 01.12.2025 г.
60 000 USD
Тел.:
+375296497974, 80154545048
Описание
Количество комнат: 3
Площадь участка, сот.: 2,5 сот.
Общая площадь: 112,3 м²
Жилая площадь: 65,8 м²
Площадь кухни: 14 м²
Этажность: 2
Готовность: 100 %
Год постройки: 2017
Материал крыши: Металлочерепица
Отопление: Газовое
Вода: Центральная
Канализация: центральная
Газ: В доме
Электроснабжение: Есть
Гараж: Есть
Статус земли: Пожизненно наследуемое владение
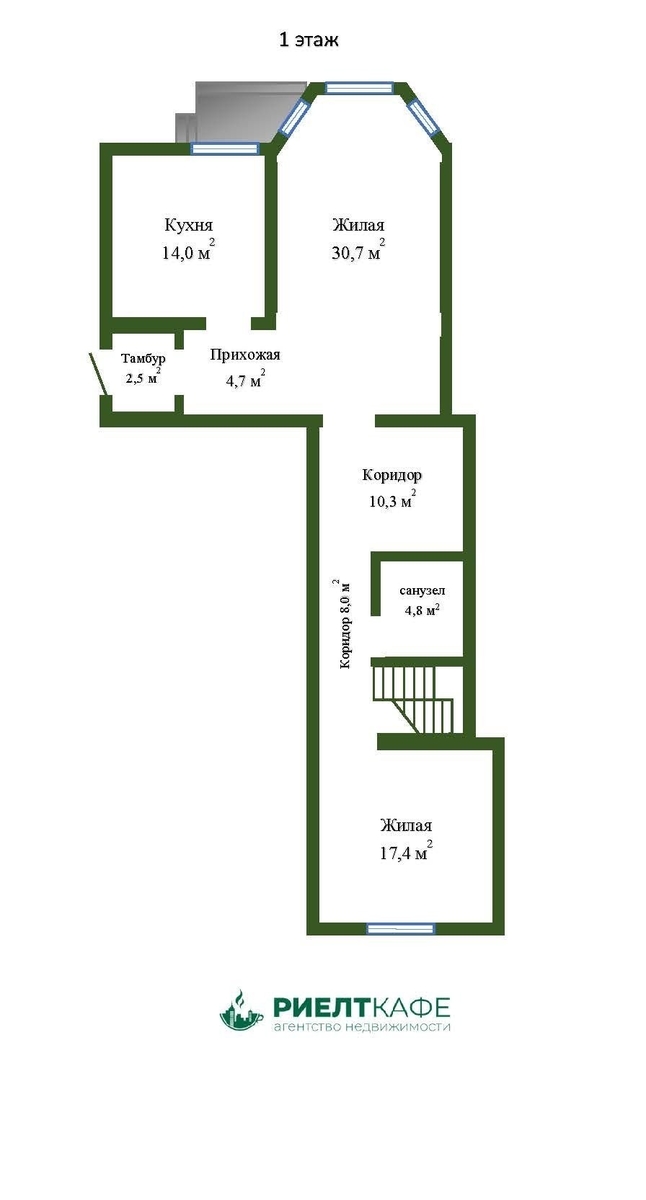
Предлагаем Вашему вниманию отличную отдельную 3-х комнатную квартиру с мебелью и техникой в блокированном жилом доме на земельном участке с гаражом и хозпостройками. Планировка уютной квартиры, общей площадью 116,3 по СНБ, включает в себя просторную кухню 14,0 м2 с выходом на земельный участок в 2,5 сотки, 3 жилые комнаты: 30,7 м2, 17,4 м2, прихожую с вместительными шкафом-купе и совмещенный санузел (4,8 м2), а также мансардный этаж площадью 17,7 м2.
Технические характеристики:
Год реконструкции -2017.
Крыша - металлочерепица.
Наружные стены - оштукатурены и утеплены минватой..
Материал стен дома - блоки стеновые.
Фундамент ленточный (бетон).
Водоснабжение - центральное.
Водоотведение - 1 септик.
Отопление- газовый котел.
Система теплых полов.
Окна ПВХ.
Входная дверь металлическая
Потолки натяжные
Видеонаблюдение
На участке гараж с роллетными воротами.
В доме погреб.
На участке мангальная зона отдыха и плодовые деревья.
Праздничная иллюминация всего дома.
Приглашаем Вас оценить все преимущества загородной жизни в городе.
Площадь участка, сот.: 2,5 сот.
Общая площадь: 112,3 м²
Жилая площадь: 65,8 м²
Площадь кухни: 14 м²
Этажность: 2
Готовность: 100 %
Год постройки: 2017
Материал крыши: Металлочерепица
Отопление: Газовое
Вода: Центральная
Канализация: центральная
Газ: В доме
Электроснабжение: Есть
Гараж: Есть
Статус земли: Пожизненно наследуемое владение
Предлагаем Вашему вниманию отличную отдельную 3-х комнатную квартиру с мебелью и техникой в блокированном жилом доме на земельном участке с гаражом и хозпостройками. Планировка уютной квартиры, общей площадью 116,3 по СНБ, включает в себя просторную кухню 14,0 м2 с выходом на земельный участок в 2,5 сотки, 3 жилые комнаты: 30,7 м2, 17,4 м2, прихожую с вместительными шкафом-купе и совмещенный санузел (4,8 м2), а также мансардный этаж площадью 17,7 м2.
Технические характеристики:
Год реконструкции -2017.
Крыша - металлочерепица.
Наружные стены - оштукатурены и утеплены минватой..
Материал стен дома - блоки стеновые.
Фундамент ленточный (бетон).
Водоснабжение - центральное.
Водоотведение - 1 септик.
Отопление- газовый котел.
Система теплых полов.
Окна ПВХ.
Входная дверь металлическая
Потолки натяжные
Видеонаблюдение
На участке гараж с роллетными воротами.
В доме погреб.
На участке мангальная зона отдыха и плодовые деревья.
Праздничная иллюминация всего дома.
Приглашаем Вас оценить все преимущества загородной жизни в городе.
Комментарии 0
Нет ни одного комментария. Вы можете стать первым!
Чтобы написать комментарий нужно войти или зарегистрироваться










