ООО "РиелтКафе" Агентство недвижимости УНП: 193208343 Лицензия: 02240/375, выдана Министерством юстиции РБ 28.06.2019г., договор оказания риэлтерских услуг продавцу объекта недвижимости 2а/2, 3а/2 6а/2 от 08.09.2025 г.
10,00 BYN
Торг уместен
Тел.:
+375296497974, 80154545048
Описание
Сдаются в аренду помещения в административно-производственном здании, полностью готовые к эксплуатации, в центре города по ул. 8 марта с высокими потолками.
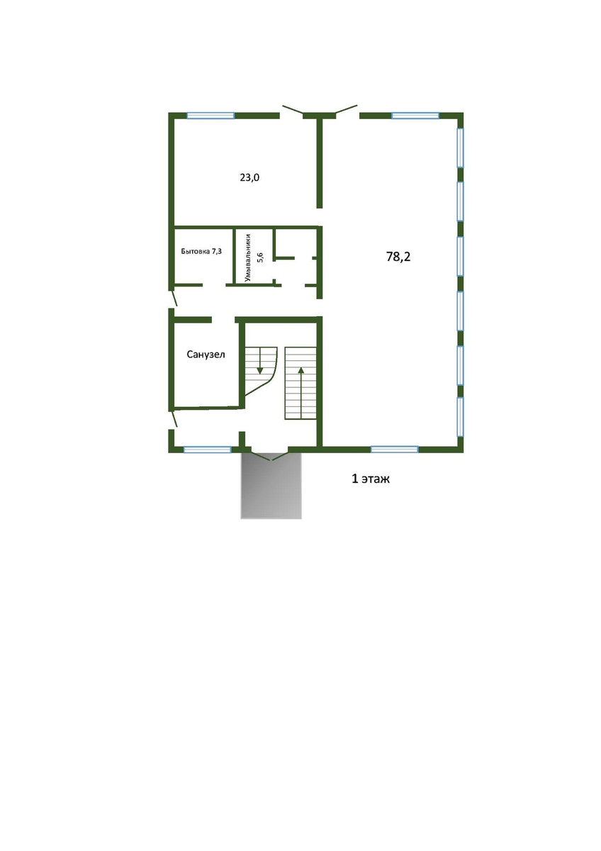
1 этаж: производство.
2 этаж: спортзал 63,3 м2
3 этаж: офис 12,3 м2 (12 р.)
Прилегающая территория площадью 0,34 га.
Рядом расположены различные действующие предприятия.
В здание подведена канализация, холодная, горячая вода, телефонные линии, интернет, видеонаблюдение, вентиляция помещений.
Мы готовы к диалогу и различным предложениям, звоните для показа и обсуждения всех условий.
1 этаж: производство.
2 этаж: спортзал 63,3 м2
3 этаж: офис 12,3 м2 (12 р.)
Прилегающая территория площадью 0,34 га.
Рядом расположены различные действующие предприятия.
В здание подведена канализация, холодная, горячая вода, телефонные линии, интернет, видеонаблюдение, вентиляция помещений.
Мы готовы к диалогу и различным предложениям, звоните для показа и обсуждения всех условий.
Комментарии 0
Нет ни одного комментария. Вы можете стать первым!
Чтобы написать комментарий нужно войти или зарегистрироваться









