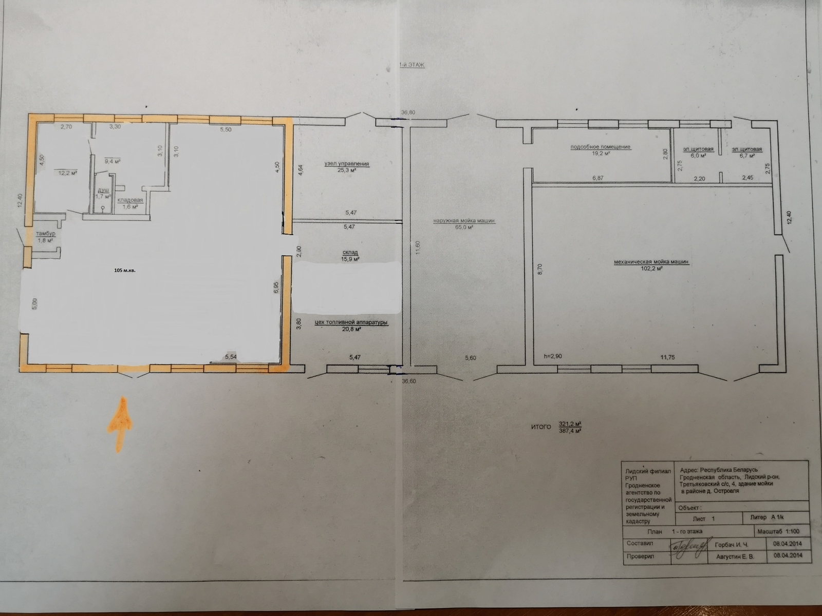
Помещение под производство, СТО, склад 132 м.кв.
924,00 BYN
Тел.:
+375296633346
Описание
Сдается в аренду помещение под производство, СТО, склад, автосервис в Лиде по улице Докучаева 69. Территория огорожена, роллетные ворота 2,9 х 3 метра, заведена большая электрическая мощность в 90 КВт, 380В. Отапливается помещение котлом на дровах, есть санузел с горячей водой и душем, помещение для клиентов, для рабочих и кладовая. Высота потолков 5 метров, видеонаблюдение, парковка. Возможно пристроить покрасочную камеру.
Комментарии 0
Нет ни одного комментария. Вы можете стать первым!
Чтобы написать комментарий нужно войти или зарегистрироваться








