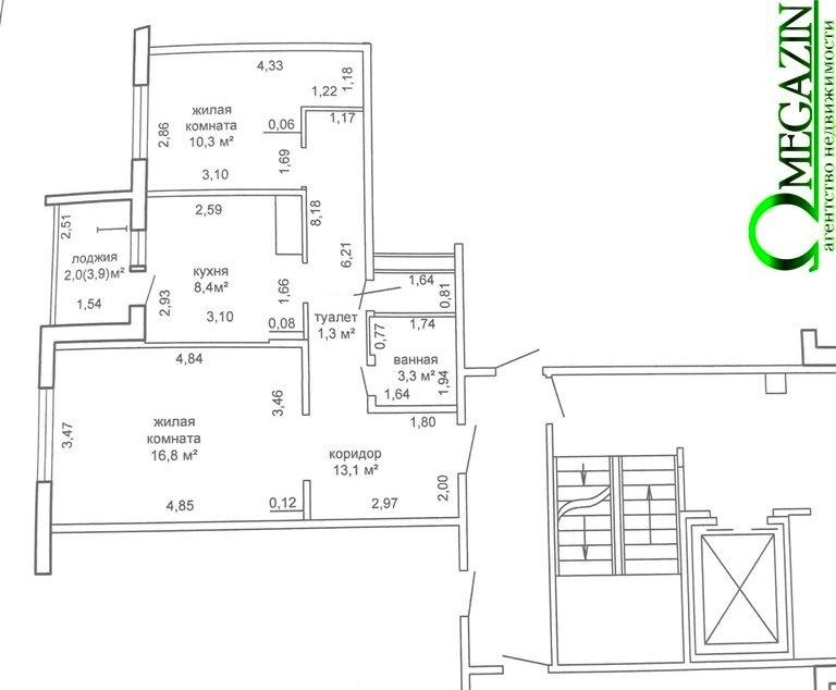
Дом 2022 года постройки. Общая площадь квартиры 53.2 м², жилая 27.1 м², площадь кухни 8.4 м²
Договор 39/5 от 30.05.2025
48 000 USD
Тел.:
+375293202078
Описание
Квартира без отделки в новостройке. Санузел раздельный. Лоджия
5 этаж из 10.
Услуга осуществляется агентством Филиал "Лидская недвижимость" ООО “Фирма 2К и К”.
Наш адрес: г. Лида, ул. Кирова, дом 23. Сайт: https://omegazin.by. E-mail: .
Более 30 лет мы квалифицировано и оперативно помогаем своим клиентам в реализации недвижимости! Беремся за ситуации любой сложности!
Лицензия на осуществление деятельности по оказанию риэлтерских услуг №02240/63 от 12.08.2005.
5 этаж из 10.
Услуга осуществляется агентством Филиал "Лидская недвижимость" ООО “Фирма 2К и К”.
Наш адрес: г. Лида, ул. Кирова, дом 23. Сайт: https://omegazin.by. E-mail: .
Более 30 лет мы квалифицировано и оперативно помогаем своим клиентам в реализации недвижимости! Беремся за ситуации любой сложности!
Лицензия на осуществление деятельности по оказанию риэлтерских услуг №02240/63 от 12.08.2005.
Комментарии 0
Нет ни одного комментария. Вы можете стать первым!
Чтобы написать комментарий нужно войти или зарегистрироваться









