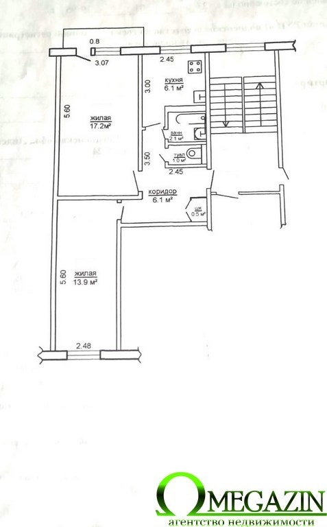
Общая площадь - 46.9 м². Жилая площадь - 31.1 м². Площадь кухни -
6.1 м². Санузел раздельный. Балкон - 2,8м². Договор 4/5 от 15.1.2026
5 900 USD
Торг уместен
Тел.:
+375297308695
Описание
Квартира в центре города Лида с хорошим ремонтом.
Продается современная 2-х комнатная квартира с новым ремонтом в центре города, пр. Победы, 38
Квартира расположена на 3 этаже 5-ти этажного дома.
Квартира общей площадью по СНБ 46.9м2 состоит из двух жилых комнат, общей площадью 13.9м2, 17.2 м2,кухней и раздельным санузлом.
В данном жилом помещении полностью залита новая стяжка на полу, заменена электропроводка, трубы водоснабжения и канализации.В квартире сделан качественный ремонт : уложен ламинат и плитка на полу, на стенах оклеены обои и декоративный камень. В квартире на потолке- натяжной потолок.
Услуга осуществляется агентством Филиал "Лидская недвижимость" ООО “Фирма 2К и К”.
Наш адрес: г. Лида, ул. Кирова, дом 23. Сайт: https://omegazin.by.
Более 30 лет мы квалифицировано и оперативно помогаем своим клиентам в реализации недвижимости! Беремся за ситуации любой сложности!
Лицензия на осуществление деятельности по оказанию риэлтерских услуг №02240/63 от 12.08.2005.
Продается современная 2-х комнатная квартира с новым ремонтом в центре города, пр. Победы, 38
Квартира расположена на 3 этаже 5-ти этажного дома.
Квартира общей площадью по СНБ 46.9м2 состоит из двух жилых комнат, общей площадью 13.9м2, 17.2 м2,кухней и раздельным санузлом.
В данном жилом помещении полностью залита новая стяжка на полу, заменена электропроводка, трубы водоснабжения и канализации.В квартире сделан качественный ремонт : уложен ламинат и плитка на полу, на стенах оклеены обои и декоративный камень. В квартире на потолке- натяжной потолок.
Услуга осуществляется агентством Филиал "Лидская недвижимость" ООО “Фирма 2К и К”.
Наш адрес: г. Лида, ул. Кирова, дом 23. Сайт: https://omegazin.by.
Более 30 лет мы квалифицировано и оперативно помогаем своим клиентам в реализации недвижимости! Беремся за ситуации любой сложности!
Лицензия на осуществление деятельности по оказанию риэлтерских услуг №02240/63 от 12.08.2005.
Комментарии 0
Нет ни одного комментария. Вы можете стать первым!
Чтобы написать комментарий нужно войти или зарегистрироваться










